
PLANNING
GUIDE
www.Dacor.com
Phone: (800) 793-0093
Specifications are subject to change without notice.
See installation instructions for additional details.
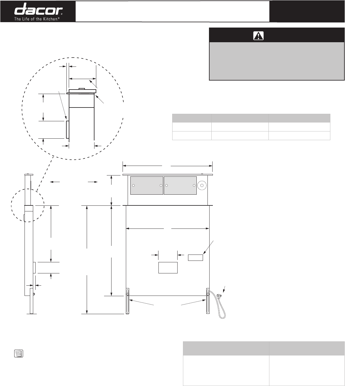
8.4
36” and 48” Wide
Slim Raised Vent for Epicure
®
Range
ERV36-ER, ERV48-ER
Model Number A B
ERV36-ER 36” (914 mm) 33 3/8” (848 mm)
ERV48-ER 48” (1219 mm) 43 3/8” (1102 mm)
30 ¼"
(768 mm)
to
37 ¼"
(946 mm)
10"
(254 mm)
30"
(762 mm)
18 5/8”
(473 mm)
5/16” (8 mm)
thick stiffener
across back
3 3/4"
(95 mm)
1"
(25 mm)
28" 3 prong
grounded
power cord
Vent shown
in raised
position
Product
data label
Motor
cover
Front of unit
6"
(152 mm)
2 9/16"
(65 mm)
2 1/2"
(64 mm)
1 15/16"
(49 mm)
B
A
Adjustable
anchor legs
2 13/16"
(71 mm)
1/4"
(6 mm)
Top cap with
vent down
Product Dimensions
All tolerances: +/- 1/16” (+/- 1.6 mm) unless otherwise stated
Document # PG08-002
Revised 04/30/09 Page 1/3
WARNING
Observe all governing codes and ordinances ◊
during planning and installation. Contact your
local building department for further information.
This appliance must be installed in accordance ◊
with the accompanying installation instructions.
Circuit Requirement (all models)*
Approved Dacor
Blowers (all models)**
Three prong electrical outlet
connected to 120 Vac, 60 Hz, 15
Amp. grounded, dedicated, circuit
Remote blowers:
REMP3 or REMP16
In-line blowers:
ILHSF8 or ILHSF10
* Includes power supply requirements for external blower.
**For detailed information on the remote/in-line blowers,
refer to the blower installation instructions.
NOTES:
1. Install these raised vents only with approved
Dacor appliances. See the planning guide for the
particular appliance for proper applications and
cutout information.
2. This appliance must be install in conjunction with
a single Dacor approved remote or in-line blower.
See following pages for approved blowers.
NOTE: See the appliance planning guide page for cutout dimensions
Kommentare zu diesen Handbüchern